2436 EDWIN STREET NEWINTER HAVEN, FL 33881




Mortgage Calculator
Monthly Payment (Est.)
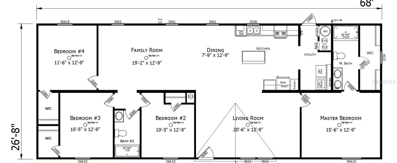
$1,140Pre-Construction. To be built. Welcome to 2436 Edwin St NE, Winter Haven, FL 33881(POLK COUNTY). This beautifully designed 4-bedroom, 2-bathroom brand-new manufactured home offers a spacious, open floor plan ideal for modern living. Designed for the modern lifestyle, the spacious open floor plan is bathed in natural light and features durable, high-end vinyl flooring throughout (no carpet!). The massive living room transitions seamlessly into the dining area and kitchen, creating an ideal layout for entertaining. Need extra space? The separate family room provides the perfect footprint for a home office, media room, or playroom. The heart of the home is a chef-inspired kitchen that checks every box: Brand-new stainless-steel appliances, Oversized central island with breakfast bar seating, Stylish shaker-style cabinets with ample storage. The master suite is a private sanctuary, featuring a massive walk-in closet and a luxurious en-suite bath complete with a modern walk-in shower. Three additional generously sized guest bedrooms and a second full bathroom with a soaking tub ensure plenty of room for family and guests. Home also features Sliding Glass door. Enjoy the peace of country living while staying minutes away from Winter Haven’s Chain of Lakes, shopping, dining, and major Central Florida attractions (LEGOLAND, DISNEY, UNIVERSAL STUDIOS). With a dedicated utility/laundry room and a brand-new energy-efficient build, this home is move-in ready and built to last. Schedule your private tour today and experience the best of Florida living! Schedule your private tour today and experience the best of Florida living!
| 2 hours ago | Listing updated with changes from the MLS® | |
| 3 hours ago | Listing first seen on site |
Listing information is provided by Participants of the Stellar MLS. IDX information is provided exclusively for personal, non-commercial use, and may not be used for any purpose other than to identify prospective properties consumers may be interested in purchasing. Information is deemed reliable but not guaranteed. Properties displayed may be listed or sold by various participants in the MLS Copyright 2026, Stellar MLS.
Last checked: 2026-01-31 04:31 PM EST
Did you know? You can invite friends and family to your search. They can join your search, rate and discuss listings with you.